For detailed planning and design of our Client's sites, we provide complete landscape architectural services from conceptual design to construction observation.
Our scope of services includes:

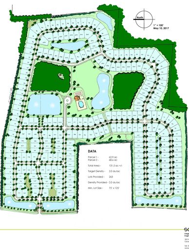
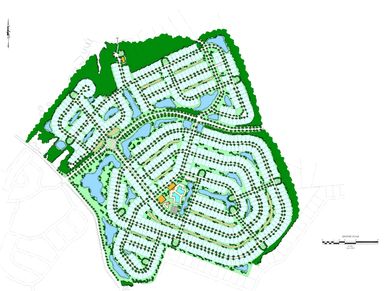
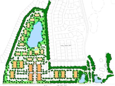
Sussex County, Delaware

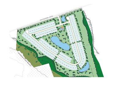
Sussex County, Delaware

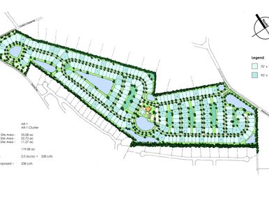
Sussex County, Delaware

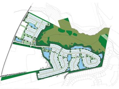
Sussex County, Delaware

Sussex County, Delaware

Sussex County, Delaware

Sussex County, Delaware

Sussex County, Delaware

Sussex County, Delaware

Sussex County, Delaware

Sussex County, Delaware

Sussex County, Delaware

Sussex County, Delaware

Sussex County, Delaware

Sussex County, Delaware
Solutions IPEM
303 N Bedford St, Georgetown, DE 19947, USA | 3003 Merritt Mill Rd, Salisbury, MD 21804
We use cookies to analyze website traffic and optimize your website experience. By accepting our use of cookies, your data will be aggregated with all other user data.